• 3D Laser Scanning

Palace Bingo

A local bingo hall on Jackson Street, Coalville – originally an old theatre building converted into a bingo hall – required a full measured survey to support future planning and refurbishment work.

Project highlights

  • Comprehensive laser scanning survey capturing the full building from basement to roof.
  • Accurate recording of complex internal geometry, including historic theatre features and large auditoriums.
  • Precise external elevations measured using combined scanning and total station control.
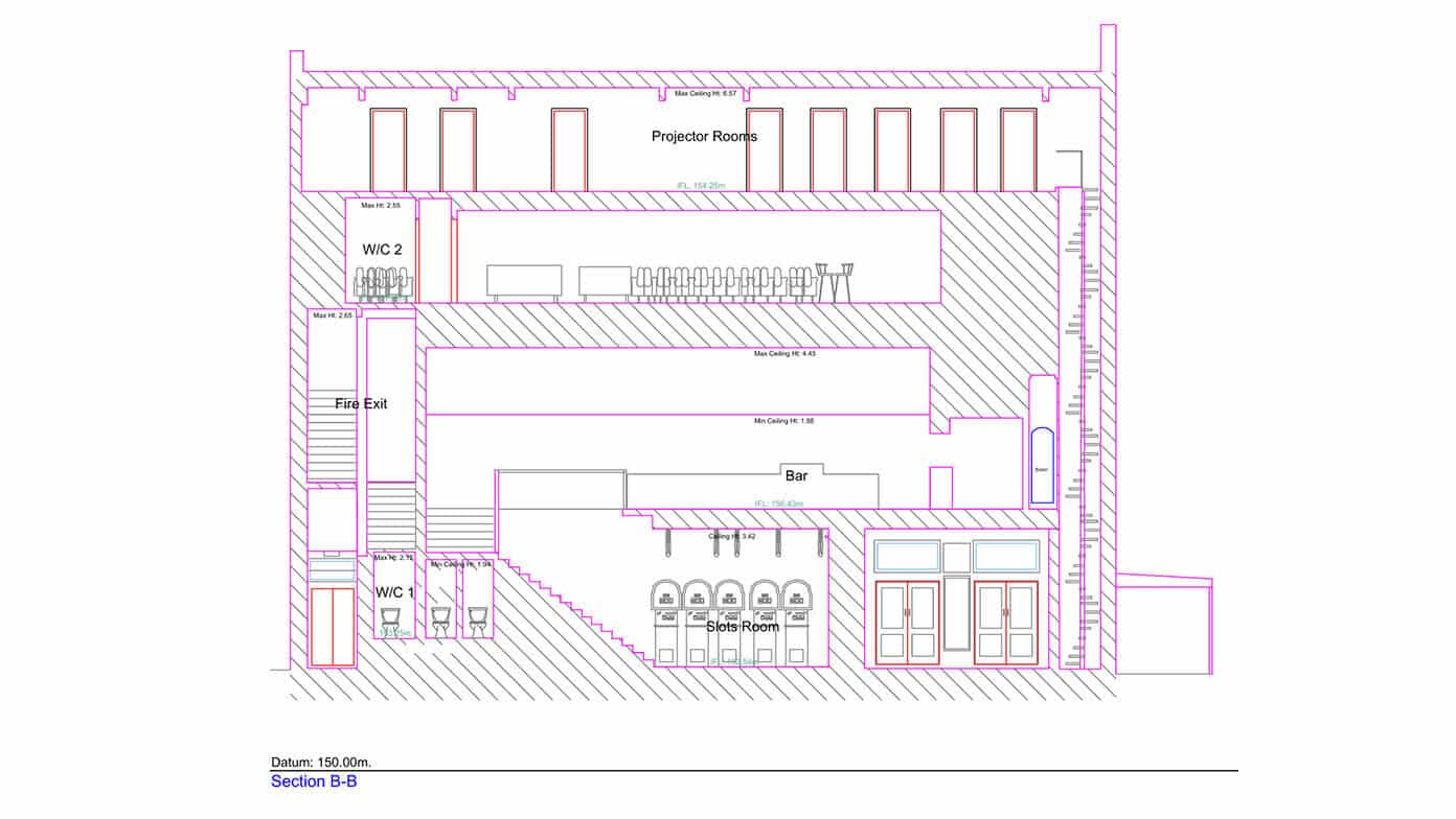
  • Strategically placed sections revealing key structural relationships and building evolution.
  • Clear CAD outputs providing a dependable foundation for redevelopment and preservation work.

The challenge

The client needed detailed floor plans for all areas, including the basement and roof, as well as complete external elevations and internal sections through the building.

As with many historic structures that have been repurposed over time, the layout included irregular features, varying levels, and legacy architectural elements that demanded careful measurement and accurate interpretation.

The solution

To meet these requirements, we carried out a comprehensive laser scanning survey, capturing the full geometry of the building from basement to roof. High-resolution scans allowed us to record the complex internal layout, including the original theatre structure, large open auditorium spaces, and all circulation routes.

The exterior was measured using a combination of laser scanning and total station control to ensure accuracy across the full height of the façades. Sections were strategically positioned to reveal key structural relationships and to give the client a clear understanding of how the building’s historic form relates to its current use.

The outcome

The client received a complete set of CAD drawings, including floor plans for all levels, accurate and clearly presented elevations, a detailed roof plan, and informative sections through the building. These deliverables provided a reliable foundation for future design and redevelopment work, giving clear visibility of both the historic structure and its present-day configuration.

The survey now supports the ongoing adaptation and preservation of this characterful former theatre building as it continues its life as a community bingo hall.

Get in touch

Looking to discuss a project?
We're here to help.