• 3D Laser Scanning

Raleigh Hall

Raleigh Hall Industrial Estate is a large, multi-use industrial site comprising a wide range of building types and operational uses. The client required a single, accurate dataset covering the entire estate to support estate management, future development, and long-term asset planning.

Project highlights

  • Full measured building survey of over 25 individual units across a large operational industrial estate.
  • Estate-wide theodolite control network ensuring accurate coordination of all buildings and external areas.
  • High-resolution laser scanning combined with DJI Matrice 4E drone survey capturing the entire site.
  • Comprehensive deliverables including AutoCAD floor plans, sections, 3D drone model, and detailed GEA/GIA calculations.
  • Survey completed within a live operational environment with minimal disruption to over 30 trading businesses.

Scope of Works

This project demonstrates our capability to deliver coordinated survey information across complex, operational industrial environments and is representative of the type of work we regularly undertake for large industrial estates.

The scope of works covered a full measured survey of over 25 individual units, including:

  • Multiple industrial units
  • Several office buildings
  • A power plant
  • A large-scale cold storage facility

In addition to the measured building surveys, the project included a full drone survey of the entire estate, capturing buildings, access routes, yards, and surrounding infrastructure.

Client requirements

The client required a comprehensive and highly detailed survey package, including:

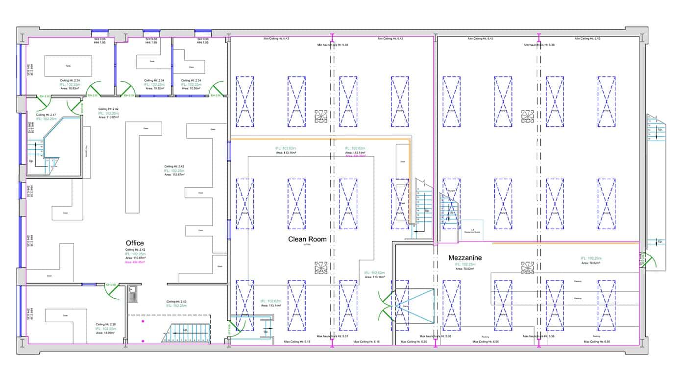
  • Full measured floor plans of every building
  • Building sections through each unit
  • Coverage of all internal and external areas, including full calculation and recording of GEA (Gross External Area) and GIA (Gross Internal Area)
  • A detailed drone survey of the whole site
  • Clear, consistent deliverables suitable for architects, engineers, and asset managers

All information needed to be accurately coordinated across the entire estate and delivered in formats ready for immediate use.

The challenges

The primary challenge of the project was the scale of the site and the need to ensure that data from more than 25 buildings aligned perfectly within a single coordinated system. Without a robust strategy, inconsistencies between buildings could have compromised the usefulness of the survey.

A further significant challenge was logistics. The estate remained fully operational throughout the survey, with over 30 different businesses trading on site. This required careful planning of access, clear communication with tenants, and a flexible approach to surveying to avoid disruption to daily operations.

Methods used

To overcome these challenges, we implemented a carefully planned and methodical survey strategy:

  • A large, estate-wide control network was established using theodolites before any laser scanning commenced. This ensured all buildings, external areas, and drone data were referenced to a single, accurate coordinate system. This also ensured consistency and accuracy across long distances and between multiple structures.
  • Multiple high-resolution laser scanners were deployed across the site, allowing us to efficiently capture detailed internal layouts, structural elements, and level information for each building.
  • A DJI Matrice 4E drone was used to carry out the aerial survey, capturing high-quality imagery and spatial data for roofs, external areas, and overall site context.

Survey activities were carefully scheduled and coordinated to work around tenant access constraints and operational requirements.

This integrated approach allowed us to collect a large volume of data efficiently while maintaining accuracy and minimising disruption.

Outputs

The client was provided with a comprehensive set of deliverables, including:

  • Full detailed AutoCAD floor plans and sections for every unit
  • Drawings issued in DWG format, with accompanying PDFs for ease of review
  • A full 3D drone model of the entire estate
  • A detailed Microsoft Word document outlining all internal and external areas for each building, including GEA and GIA information

All outputs were clearly structured, consistently presented, and suitable for immediate use across multiple disciplines.

The outcome

The completed survey delivered a single, reliable source of truth for the entire Raleigh Hall Industrial Estate. By combining detailed measured building surveys, a coordinated control network, and high-quality drone data, the client now has a clear and accurate understanding of their assets across the whole site.

For industrial estate owners and managers, this project highlights the value of a coordinated, estate-wide survey approach. Accurate data reduces risk, improves planning efficiency, and supports informed decision-making for redevelopment, leasing, compliance, and long-term asset management. The Raleigh Hall project clearly demonstrates our ability to manage complex, large-scale industrial surveys and deliver high-quality results within live operational environments.

 

Get in touch

Looking to discuss a project?
We're here to help.